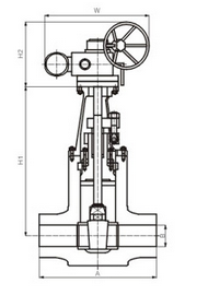
电站高温高压美标闸阀

技术参数:
产品型号:Z61Y
公称通径:NPS8"~12"
公称压力:Class1500~2500Lb
设计制造:ASME B16.34 JB/T3595
检查与试验:JB/ T3595 MSS SP-61
承插焊:ASME B16.11
对接焊:ASME B16.25
法兰连接:ASME B16.5
| NPS | in | 8"(1500Lb) | 10"(1500Lb) | 12"(1500Lb) | 14"(1500Lb) | 8"(2500Lb) | 10"(2500Lb) | 12"(2500Lb) |
| A | in | 28 | 34 | 39 | 42 | 30 | 36 | 41 |
| B | in | 5-3/5 | 7-1/10 | 8-3/10 | 9-3/10 | 5-1/5 | 6-1/2 | 7-1/2 |
| H1 | in | 36-3/5 | 38-3/5 | 45-1/2 | 50-2/5 | 38-1/5 | 44-9/10 | 50 |
| H2 | in | 17-3/10 | 22 | 22 | 22 | 22 | 22 | 22 |
| W | in | 34-1/10 | 34-7/10 | 34-7/10 | 34-7/10 | 34-7/10 | 34-7/10 | 34-7/10 |
| Weight | Lb | 1408 | 2532 | 3542 | 4532 | 2046 | 3190 | 4356 |
下一个产品:高温高压电动闸阀
上一个产品:没有了


沪公网安备 31011302007397号

